Preise
-
Kaufpreis
240.000 €
-
Käuferprovision zzgl. USt.
prov.frei
Die Immobilie
Haus zum Kauf
-
Objekt-Nr
VM-2024-391
-
Anzahl Etagen
2
-
Erschließung
voll erschlossen
Räume und Flure
-
Anzahl Schlafzimmer
4
-
Anzahl Badezimmer
3
-
Anzahl Balkone
1
-
Anzahl Terrassen
1
Ausstattung
- Provisionspflichtig
- Gartennutzung
- Kabel/Sat-TV
- neuwertig
- Bauweise: Massiv
- Unterkellert: teilweise
- Heizungsart: Zentralheizung
Beschreibung
Ausstattung
Lage
Sonstiges
In einer Zeit, in der die Wohnbedürfnisse immer individueller werden, zeichnet sich das neu gebaute Haus durch seine moderne Architektur und durchdachte Raumgestaltung aus. Es wurde mit dem Fokus auf Licht, Offenheit und Funktionalität entworfen, um den heutigen Ansprüchen an ein zeitgemäßes Zuhause gerecht zu werden.
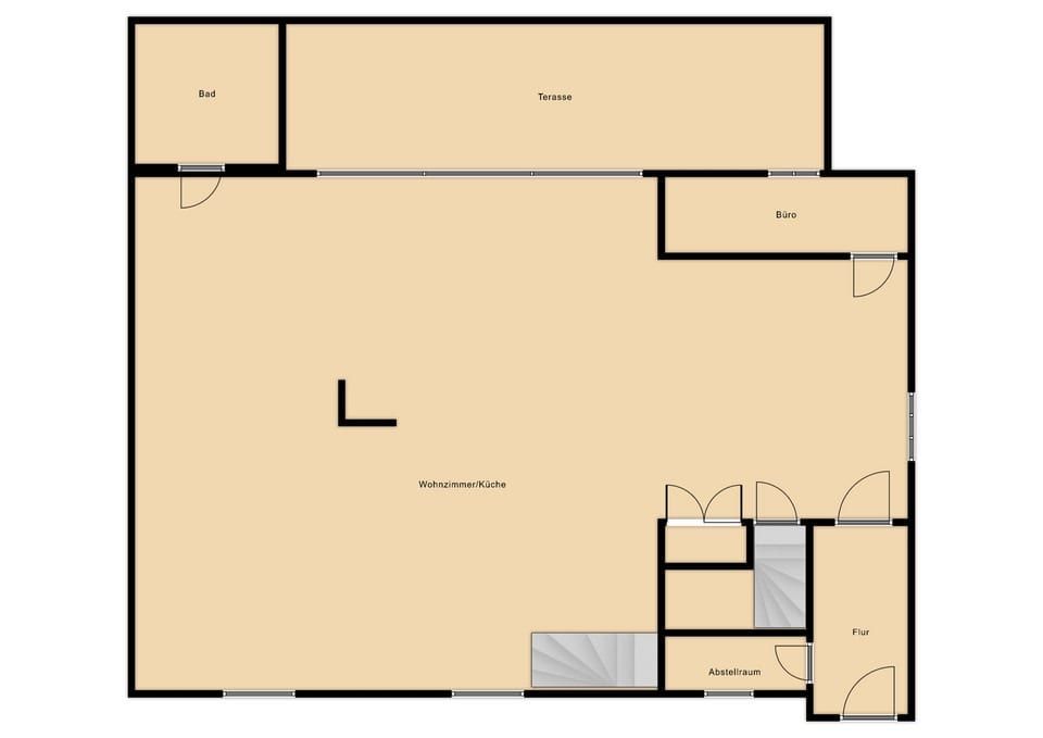
Das Herzstück des Hauses bildet die großzügige Kochinsel, die nicht nur als Arbeitsfläche dient, sondern auch als sozialer Treffpunkt für Familie und Freunde. Die offene Gestaltung des Wohn- und Essbereichs ermöglicht es, dass Licht ungehindert durch große Fensterfronten strömt, wodurch eine helle und einladende Atmosphäre entsteht. Diese Offenheit fördert die Interaktion zwischen den verschiedenen Wohnbereichen und schafft einen harmonischen Fluss im Alltag.
Als Rückzugsort laden im Dachgeschoss drei helle Schlafzimmer sowie ein kleines Büro ein. Eines davon mit direkt anliegendem Badezimmer.
Ein weiteres Highlight ist der große Garten, der vielseitige Nutzungsmöglichkeiten bietet. Ob für entspannte Stunden im Freien, gesellige Grillabende oder als Spielbereich für Kinder – der Garten erweitert den Wohnraum nach draußen und trägt zur Lebensqualität bei. Die harmonische Verbindung von Innen- und Außenraum wird durch geschickte Terrassengestaltung und gezielte Bepflanzung unterstrichen.
Zusammenfassend lässt sich sagen, dass dieses neu gebaute, moderne Haus mit seiner offenen Architektur, der funktionalen Kochinsel und dem großen Garten ideal für alle ist, die Wert auf ein lichtdurchflutetes, einladendes und nachhaltiges Wohnumfeld legen.
Neubau von 2015***großes Haus***sechs Zimmer***drei Badezimmer***Balkon***Terrasse***Carports***großer Garten***
Krackow befindet sich im Südostzipfel des Landes Mecklenburg-Vorpommern zwischen der Randow (Landesgrenze zu Brandenburg und auf 4 km Gemeindegrenze) und der 10–15 km entfernten Oder im Osten.
Krackow liegt 25 km südöstlich der Stadt Pasewalk und 20 km südwestlich des Stadtzentrums von Stettin (Szczecin, Polen). Im Westen hat das Gemeindegebiet Anteil am Randowbruch.
Der größere Teil aber liegt auf dem hügeligen Grundmoränenrücken. Hier gibt es, vor allem im Osten der Gemeinde, mehrere kleine Seen; der flächenmäßig größte ist der Lebehnsche See im Nordosten. Nahe dem Ortsteil Schuckmannshöhe befindet sich mit dem Düsteren See ein Badesee. Der Wasserspiegel des Seegrabens, der einen See südlich der Gemeinde zur Randow hin entwässert, liegt in Krackow 14 m über dem der Randow. Die Höhen der Hügelkuppen liegen etwa 40 m über NN.
Umgeben wird Krackow von den Nachbargemeinden Glasow im Norden, Grambow im Nordosten, Nadrensee im Osten, Penkun im Süden sowie Brüssow im Westen.
Wir bitten um Verständnis, dass wir nur vollständige schriftliche Anfragen (Email, Fax, Name, Anschrift und Telefonnummer [tagsüber]) beantworten können. Gern stehen für eine persönliche Beratung zur Verfügung.
Haftungsausschluss
Flächen- und Maßangaben sind ca.-Werte.
Alle Angaben haben wir vom Auftraggeber erhalten. Für deren Richtigkeit können wir keine Gewähr übernehmen. Einen Zwischenverkauf behält sich der Auftraggeber / Verkäufer ausdrücklich vor.